Projekt fabryki eco tekstyliów

  • Lokalizacja: Poznań
  • Zakres: Projekt architektoniczny

Opis projektu

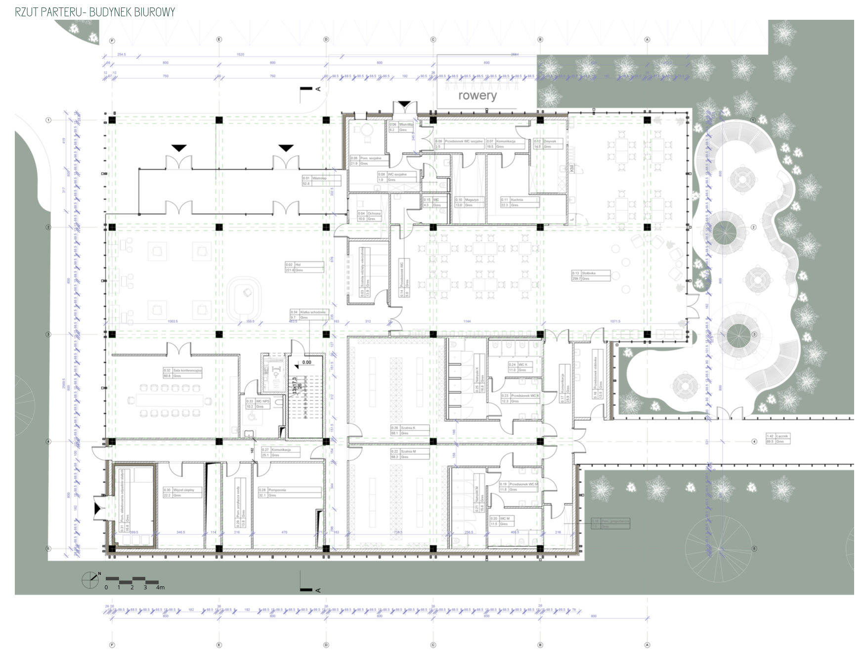
Projekt fabryki eco-tekstyliów zlokalizowanej w Poznaniu ( rejon Fabianowo–Kotowo), w pobliżu zjazdu z autostrady A2, na terenie przeznaczonym w MPZP pod zabudowę techniczno-produkcyjną lub usługową, w sąsiedztwie obiektów o podobnej funkcji. Założenie tworzą dwukondygnacyjny budynek biurowy oraz jednokondygnacyjna hala produkcyjna połączone łącznikiem. Wjazd na działkę od ul. Marii Lange zaprojektowano z kontrolą dostępu oraz czytelnym rozdziałem ruchu osobowego i transportu ciężkiego. Przed biurem przewidziano parking dla pracowników i klientów, natomiast przy dłuższym boku hali strefę dostaw z obniżonym o 1 m placem przeładunkowym, do którego prowadzi droga pożarowa ukształtowana ze spadkiem. Hala ma konstrukcję ramową z elementów blachownicowych bez podpór wewnętrznych. Elewacje hali wykonane z blachy falistej, natomiast budynek biurowy wykończony blachą tytan-cynk z rytmem pionowych podziałów i dużymi przeszkleniami od strony drogi dojazdowej i parkingu. Program biura obejmuje na parterze wejście, salę konferencyjną, szatnie połączone z halą, stołówkę, zaplecze techniczne, a na piętrze część administracyjną, projektową i laboratoryjną związaną z opra-cowaniem oraz badaniem tkanin i procesami barwienia. Pomiędzy budynkiem biurowym a łącznikiem zaprojektowano patio jako przestrzeń wypoczynku dla pracowników. Ekologiczny charakter zakładu oparto na produkcji przędzy z surowców z recyklingu oraz ograniczaniu zużycia wody, a na działce zaplanowano zbiornik retencyjny pełniący także funkcję ppoż.; za halą pozostawiono rezerwę terenu pod ewentualną rozbudowę.