Manufaktura Ceramiki w Baranowie

  • Lokalizacja: Baranowo, gm.Tarnowo Podgórne
  • Zakres: Projekt architektoniczny i zagospodarowanie terenu

Opis projektu

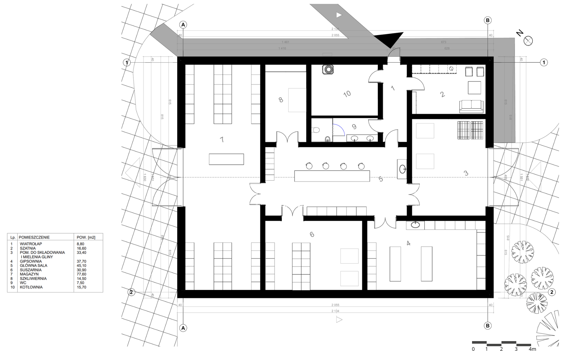
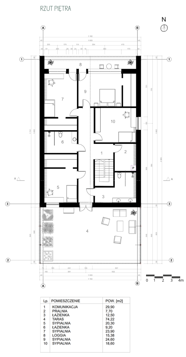
Planowana lokalizacja znajduje się we wsi Baranowo, w gminie Tarnowo Podgórne, w malowniczej okolicy Jeziora Kierskiego. Bezpośrednio przed działką położone są dwa stawy, które podkreślają walory krajobrazowe całego założenia. Projekt składa się z trzech budynków: domu mieszkalnego, budynku produkcyjnego oraz sklepu z przestrzenią do nauki wytwarzania ceramiki. Zastosowano proste formy architektoniczne z dachami dwuspadowymi nawiązujące do archetypu „stodoły”. Budynek mieszkalny oraz sklep zlokalizowano szczytem do drogi, od strony stawu, natomiast część produkcyjną umieszczono w południowej części działki. Rozmieszczenie obiektów porządkuje teren i tworzy dwa odrębne wnętrza: bardziej prywatny ogród dla mieszkańców oraz strefę komercyjno-produkcyjną. Zaprojektowano dwa niezależne wjazdy: od strony stawu dla mieszkańców oraz bliżej głównej drogi dla pracowników i klientów. Jako główny materiał elewacyjny zastosowano cegłę, uzupełnioną o stalowe akcenty i przeszklenia. Aby lepiej wpisać zabudowę w zielony krajobraz, na dwóch budynkach przewidziano dachy zielone. Na dachu budynku produkcyjnego zaprojektowano panele fotowoltaiczne, zapewniające częściową niezależność energetyczną założenia.